Фильтр сорбционный безнапорный «ФСБ»
Установка предназначена для доочистки поверхностных сточных вод от тонкодисперсных взвешенных веществ и растворенных нефтепродуктов.
Фильтр сорбционный безнапорный «ФСБ» (1-50 л/с)
1 – сорбционная загрузка; 2 – затвор шиберный; 3 – заслонка шиберная; 4 – распредели- тельно-разгрузочная труба; 5 – круговой сборный лоток; 6 – подводящий патрубок; 7 – от- водящий патрубок; 8 – переливной патрубок; 9 – лестница.
Концентрации загрязняющих веществ в сточной воде до и после очистки указаны в таблице:
Эффективность очистки фильтров сорбционных безнапорных «ФСБ»
|
Вид загрязнений |
характеристики исходной воды, мг/л |
характеристики очищенной воды, мг/л |
|
Взвешенные вещества |
до 10 |
1-3 |
|
Нефтепродукты |
0,3-0,5 |
0,03-0,05 |
Технические характеристики фильтров сорбционных безнапорных «ФСБ»
| Марка | Q, л/с | Масса корпуса, кг | Основные размеры (мм) | |||
| D, мм | d1, мм | H1, мм | H2, мм | |||
| ФСБ-1 | 1-4 | 708 | 1500 | 110 | 1890 | 1640 |
| ФСБ-2 | 5-8 | 732 | 2200 | 160 | 2000 | 1750 |
| ФСБ-3 | 9-12 | 1533 | 2200 | 160 | 2500 | 2200 |
| ФСБ-4 | 13-20 | 2103 | 3000 | 200 | 3000 | 2600 |
| ФСБ-25 | 21-25 | 2236 | 3000 | 200 | 3700 | 3000 |
| ФСБ-30 | 26-30 | 2354 | 3000 | 200 | 4200 | 3400 |
| ФСБ-35 | 31-35 | 2425 | 3000 | 250 | 4500 | 3500 |
| ФСБ-40 | 36-40 | 2500 | 3000 | 250 | 4800 | 3600 |
| ФСБ-45 | 41-45 | 2566 | 3000 | 250 | 5100 | 3700 |
| ФСБ-50 | 46-50 | 2637 | 3000 | 250 | 5400 | 3800 |
Принцип очистки
Сорбционный фильтр представляет собой цилиндрическую стеклопластиковую емкость с патрубками для поступления и отвода воды с расчетной скоростью протока, назначением которой является обеспечение доочистки сточных вод в период всего времени эксплуатации очистных сооружений поверхностных стоков. В фильтре использована динамическая адсорбция, т.е. процесс, при котором раствор адсорбента протекает через неподвижный слой сорбента.
В качестве сорбента используется природный камень шунгит, активированный уголь и гидрофобный сорбент, что позволяет эксплуатировать очистные сооружения без замены сорбционной загрузки более 3-х лет; обеспечить высокую степень очистки на всем протяжении периода эксплуатации. Граница между использованным и свежим сорбентом не четкая. Срок службы сорбента определяется степенью очистки на выходе и зависит от уровня загрязнения взвешенными веществами, а также от концентрации нефтепродуктов на входе.
Жироуловители марки «ЖУ»
Жироуловители «ЖУ» предназначены для выделения и последующего удаления жиров из производственных сточных вод пунктов общественного питания (рестораны, столовые, и др.), с дальнейшим сбросом очищенных стоков в сети городской канализации.
Эффективность очистки сточных вод:
- в установке связывается до 70% жира, поступающего вместе с водой на очистку;
- по взвешенным веществам до 50%.
Принцип очистки
Жироуловитель предназначены для кухонь (столовых, ресторанов, баров, кафе, гостиниц и т.д.), предприятий по производству гриля и жареных продуктов, мясных, рыбных, колбасных производств, предприятий по выпуску клея, мыла и стеарина, предприятий по производству масел, молочных комбинатов. Жироуловитель используется для механического отделения жиров растительного и животного происхождения от основной массы стоков. Необходимость применения жироуловителя для канализации заключается в том, что из-за жиров блокируется водоотводящая система, что в свою очередь приводит к целому ряду негативных явлений. Частицы масла и жира поднимаются на поверхность из-за разницы удельного веса с водой. Наиболее распространенные места использования жироуловителей: кухни в столовых (подробнее), ресторанах (подробнее), кафе (подробнее), барах, отелях, гостиницах, и т.д.; предприятия по производству блюд на гриле и жареных продуктов; мясные, рыбные, колбасные, кондитерские производства; предприятия по производству масел, молочные комбинаты; предприятия по выпуску мыла, клея и стеарина; и пр. Промышленный Жироуловитель отличается большой пропускной способностью. Он размещается в специально отведенном месте, которое удобно для доступа обслуживающего персонала. Обслуживающий персонал должен выполнять работы по удалению скопившегося жира и иловых отложений, проводить внешний осмотр оборудования, с целью проверки герметичности сварных швов. Компания «VIAMM» предлагает Вашему вниманию жироуловители для канализации, все основные детали которых производятся из высококачественного армированного стеклопластика. Это позволяет увеличить срок эксплуатации сооружения до 25-50 лет, обеспечить надёжность установки, безупречный внешний вид.
Поступление в систему канализации вместе со сточными водами жира приводит к засорению труб, развитию неприятных запахов и создает среду для размножения бактерий. Использование жироуловителей предотвращает засорение систем канализации, нормализует работу очистных сооружений.
Принцип очистки
Жироуловитель представляет собой цилиндрическую емкость, в которой оборудованы две камеры: первичный отстойник и накопление жира, вторичный отстойник
Принцип работы – гравитационный. Жиросодержащие сточные воды направляются в первый отсек для отделения твердых веществ. После отделения основной массы взвешенных веществ вода переливом поступает в отсек жироотделения. Отделение жира основано на разнице в удельном весе жира и воды. Отделившиеся жиры всплывают на поверхность, а очищенная вода через выходную трубу сбрасывается в канализационную сеть или на дальнейшую очистку.
Конструкция жироуловителей «ЖУ»
1 – технический колодец; 2 – вентиляционный стояк; 3 – стояк для откачки осадка; 4 – переливная стенка; 5 – датчик уровня жиропродуктов; 6 – сигнализатор; 7 – лестница из н/ж стали; 8 – крышка стеклопластиковая.
Технические характеристики жироуловителей «ЖУ»
Конструкция жироуловителей «ЖУ»
1 – технический колодец;
2 – вентиляционный стояк;
3 – стояк для откачки осадка;
4 – переливная стенка;
5 – датчик уровня жиропродуктов;
6 – сигнализатор;
7 – лестница из н/ж стали;
8 – крышка стеклопластиковая.
Технические характеристики жироуловителей «ЖУ»
Комбинированный песко-нефтеуловитель
Комбинированный песко-нефтеуловитель полной заводской готовности, предназначенный для улавливания и сбора песка, взвешенных, плавающих веществ, а также нефтепродуктов из поверхностных (дождевых) и промышленных сточных вод (далее КПН).
Производительность от 1 до 100 литров воды в секунду. Область применения: бензозаправки, автосервис, стоянки, гаражи, торговые комплексы, промышленные предприятия. Вода, подающаяся на очистку в КПН должна иметь параметры: содержание взвешенных веществ не более 2000 мг/литр, нефтепродуктов не более 200 мг/литр. Если эти параметры выше, то до уловителя должна быть предусмотрена дополнительная система отстаивания.
Степень очистки по нефтепродуктам – до 0,3 мг/л, а по взвешенным веществам– до 10 мг/л. Если стоки необходимо очистить до норм сброса в водоемы рыбохозяйственного назначения (0,05 мг/л - по н/п, 1-3 мг/л — по в/в), то КПН доукомплектовывается дополнительным блоком доочистки.
При сборе сточной воды с какой-либо территории, не требующей 100% очистки всего объема стока, на очистку направляется первые 10мм осадков. В этом случае рекомендуется перед технологической схемой, устанавливать разделительную камеру, производства «VIAMM».
1.Состав оборудования
| 1. | Установка в сборе | шт | 1 | - | |
| 2. | Технический колодец (превышения) | шт | 1-2 | от производительности | |
| 3. | Стеклопластиковая крышка технического колодца | шт | 1-2 | от производительности | |
| 4. | Датчик уровня нефтепродуктов | шт | 1 | под заказ | |
| 5. | Датчик уровня песка
| шт | 1 | под заказ | |
| 6. | Лестница съемная из нержавеющей стали | шт | 1 | под заказ | |
2. Габаритные размеры
Рис.2.1 Схема комбинированного песко-нефтеуловителя
1-вентиляционный стояк, 2-стояк для откачки осадка, 3- стояк для откачки
нефтепродуктов, 4-подводящий трубопровод, 5-отводящий трубопровод, 6-
сороудерживающая решетка, 7-тонкослойный модуль, 8-блок с сорбентом
«Мегасорб», 9-уровень воды, 10-осадок.
Марка | Q, л/с | Вес, кг | Основные размеры КПН, мм | |||
D
| L | H1 | H2 | |||
КПН-1
| 1 | 645 | 1600 | 2500 | 1400 | 1300 |
КПН-2 | 2
| 720 | 1600 | 4400 | 1400 | 1300 |
КПН-3 | 3
| 820 | 1600 | 5000 | 1400 | 1300 |
КПН-4 | 4
| 865 | 1600 | 5400 | 1400 | 1300 |
КПН-5 | 5
| 925 | 1600 | 5900 | 1400 | 1300 |
КПН-6 | 6 | 995 | 1600 | 6300 | 1400 | 1300 |
КПН-7 | 7
| 1030 | 1600 | 6700 | 1400 | 1300 |
КПН-8 | 8
| 1075 | 1600 | 7100 | 1400 | 1300 |
КПН-9 | 9
| 1110 | 1600 | 7500 | 1400 | 1300 |
КПН-10 | 10
| 1425 | 2000 | 7200 | 1700 | 1600 |
КПН-11 | 11
| 1480 | 2000 | 7600 | 1700 | 1600 |
КПН-12 | 12
| 1550 | 2000 | 8000 | 1700 | 1600 |
КПН-13 | 13
| 1645 | 2000 | 8400 | 1700 | 1600 |
КПН-14 | 14
| 1720 | 2000 | 8800 | 1700 | 1600 |
КПН-15 | 15
| 1785 | 2000 | 9200 | 1700 | 1600 |
КПН-16 | 16
| 1840 | 2000 | 9600 | 1700 | 1600 |
КПН-17 | 17
| 1895 | 2000 | 10000 | 1700 | 1600 |
КПН-18 | 18
| 1945 | 2000 | 10400 | 1700 | 1600 |
КПН-19 | 19
| 2115 | 2000 | 10800 | 1700 | 1600 |
КПН-20 | 20
| 2230 | 2000 | 11200 | 1700 | 1600 |
Завод изготовитель оставляет за собой право изменять габаритные
размеры и конструкцию сооружений.
3. Технология очистки
Сточная вода поступает в приёмный отсек установки, где происходит частичное снижение её скорости. Затем в рабочей части уловителя, по мере движения воды, скорость течения снижается до такой степени, что взвешенные вещества, находящиеся в воде, начинают осаждаться на дно отделителя. Частично освобождённая от взвешенных веществ вода проходит дополнительную очистку на тонкослойных фильтрующих блоках, сконструированных по принципу противоточного удаления «тяжелых» примесей.
Далее осветленная вода проходит через тонкослойные (коалесцентные) фильтрующие модули, сконструированные по принципу проточного удаления «легких» примесей. Здесь происходит выделение остаточной взвеси, коалесценция нефтепродуктов (эмульгированные нефтепродукты всплывают на поверхность воды в виде нефтяной пленки).
Далее сточные воды проходят доочистку на сорбционном блоке. Здесь восходящим потоком сточные воды фильтруются через расчетный слой сорбционного материала, за счет чего происходит удаление высоко эммульгированных нефтепродуктов и легкой взвеси.
4. Эффективность очистки
|
Вид загрязнений
| Концентрация, мг/л
| |
| на входе | на выходе
| |
| Взвешенные вещества | < 2000 | 10-20 (1-3)*
|
| Нефтепродукты | < 200 | 0,3-0,5 (0,03-0,05)*
|
* - при наличии дополнительного сорбционного блока;
Комбинированный песко-нефтеуловитель полной заводской готовности, предназначенный для улавливания и сбора песка, взвешенных, плавающих веществ, а также нефтепродуктов из поверхностных (дождевых) и промышленных сточных вод (далее КПН).
Производительность от 1 до 100 литров воды в секунду. Область применения: бензозаправки, автосервис, стоянки, гаражи, торговые комплексы, промышленные предприятия. >Вода, подающаяся на очистку в КПН должна иметь параметры: содержание взвешенных веществ не более 2000 мг/литр, нефтепродуктов не более 200 мг/литр. Если эти параметры выше, то до уловителя должна быть предусмотрена дополнительная система отстаивания.
Степень очистки по нефтепродуктам – до 0,3 мг/л, а по взвешенным веществам– до 10 мг/л. Если стоки необходимо очистить до норм сброса в водоемы рыбохозяйственного назначения (0,05 мг/л - по н/п, 1-3 мг/л — по в/в), то КПН доукомплектовывается дополнительным блоком доочистки. При сборе сточной воды с какой-либо территории, не требующей 100% очистки всего объема стока, на очистку направляется первые 10мм осадков. В этом случае рекомендуется перед технологической схемой, устанавливать разделительную камеру, производства «VIAMM».
1.Состав оборудования
| 1. | Установка в сборе | шт | 1 | - | |
| 2. | Технический колодец (превышения) | шт | 1-2 | от производительности | |
| 3. | Стеклопластиковая крышка технического колодца | шт | 1-2 | от производительности | |
| 4. | Датчик уровня нефтепродуктов | шт | 1 | под заказ | |
| 5. | Датчик уровня песка
| шт | 1 | под заказ | |
| 6. | Лестница съемная из нержавеющей стали | шт | 1 | под заказ | |
. Габаритные размеры
Рис.2.2 Схема комбинированного песко-нефтеуловителя с
дополнительным сорбционным блоком
1-вентиляционный стояк, 2-стояк для откачки осадка, 3- стояк для откачки
нефтепродуктов, 4-подводящий трубопровод, 5-отводящий трубопровод, 6-
сороудерживающая решетка, 7-тонкослойный модуль, 8-блок с сорбентом
«Мегасорб», 9- блок с сорбентом «Таурит», 10-уровень воды, 11-осадок.
| Марка | Q, л/с | Вес, кг | Основные размеры КПН, мм | |||
| D | L | H1 | H2 | |||
| КПН-1
| 1 | 645 | 1600 | 4800 | 1400 | 1300 |
| КПН-2
| 2 | 720 | 1600 | 5500 | 1400 | 1300 |
| КПН-3
| 3 | 820 | 1600 | 6500 | 1400 | 1300 |
| КПН-4
| 4 | 865 | 1600 | 7000 | 1400 | 1300 |
| КПН-5
| 5 | 925 | 1600 | 7800 | 1400 | 1300 |
| КПН-6
| 6 | 995 | 1600 | 8400 | 1400 | 1300 |
| КПН-7
| 7 | 1030 | 1600 | 9000 | 1400 | 1300 |
| КПН-8
| 8 | 1075 | 1600 | 9600 | 1400 | 1300 |
| КПН-9
| 9 | 1110 | 1600 | 10100 | 1400 | 1300 |
| КПН-10
| 10 | 1425 | 2000 | 9800 | 1700 | 1600 |
Оборудование большей производительности подбирается по индивидуальному запросу.
Завод изготовитель оставляет за собой право изменять габаритные
размеры и конструкцию сооружений.
Технология очистки
Сточная вода поступает в приёмный отсек установки, где происходит частичное снижение её скорости. Затем в рабочей части уловителя, по мере движения воды, скорость течения снижается до такой степени, что взвешенные вещества, находящиеся в воде, начинают осаждаться на дно отделителя. Частично освобождённая от взвешенных веществ вода проходит дополнительную очистку на тонкослойных фильтрующих блоках, сконструированных по принципу противоточного удаления «тяжелых» примесей.
Далее осветленная вода проходит через тонкослойные (коалесцентные) фильтрующие модули, сконструированные по принципу проточного удаления «легких» примесей. Здесь происходит выделение остаточной взвеси, коалесценция нефтепродуктов (эмульгированные нефтепродукты всплывают на поверхность воды в виде нефтяной пленки). Далее сточные воды проходят доочистку на сорбционном блоке. Здесь восходящим потоком сточные воды фильтруются через расчетный слой сорбционного материала, за счет чего происходит удаление высоко эммульгированных нефтепродуктов и легкой взвеси.
Эффективность очистки
|
Вид загрязнений
|
Концентрация, мг/л
|
|
|
на входе |
на выходе
|
|
|
Взвешенные вещества |
< 2000 |
10-20 (1-3)*
|
|
Нефтепродукты |
< 200 |
0,3-0,5 (0,03-0,05)*
|
* - при наличии дополнительного сорбционного блока;
Комплексные системы очистки воды ЛОС
Принцип очистки
Ливневые очистные сооружения поставляются в едином корпусе, для увеличения производительности очистные сооружения располагаются параллельно. Корпус очистных сооружений содержит в себе следующие технологические блоки:
- пескоуловитель;
- бензомаслоуловитель;
- сорбционный фильтр.
После выпадения обильных дождей и таяния снега образуются ливневые стоки, которые представляют немалую опасность для промышленных, бытовых и сельскохозяйственных объектов, поскольку содержат большое количество загрязнений и могут нанести вред окружающей среде. К сточным водам (поверхностным стокам) также относят стоки воды от полива территории предприятий, городских улиц, а так же, дренажные воды.
Проблема утилизации стоков решается при помощи ливневой канализации, которая предназначена для сбора, очистки и отвода стоков в необходимое место. Комплексная система очистки ливневых стоков дает высокое качество очистки, благодаря чему появляется возможность использовать очищенную воду в промышленных, бытовых или хозяйственных целях. А так же, сохранить экологическое равновесие окружающей среды, минимизировав вред, наносимый промышленной деятельностью.
ТОО «VIAMM » предлагает услуги по строительству комплексных систем очистки сточной воды, в Казахстане.
Очистка ливневых стоков:
Самой эффективной инженерной коммуникацией осуществляющей оперативный сбор поверхностных сточных вод является ливневая канализация с дождеприёмниками, когда отвод стока осуществляется в коллекторы городского водостока. Однако, промышленные и бытовые объекты могут располагаться на значительном удалении от таких сетей и иметь в своем распоряжении достаточно ограниченную территорию, не позволяющую построить цепочку очистных сооружений отдельно для каждого из видов загрязнений. В данной ситуации, наиболее приемлемым решением будет использование комплексных систем очистки ЛОС . Инженерное решение данного вида очистных сооружений объединяет несколько очистных сооружений в одном корпусе (пескоотделитель, бензомаслоотделитель, сорбционный фильтр), вследствие чего значительно снижается стоимость устройства, монтажа и дальнейшего обслуживания. Выбор оптимальной комплектации системы очистки зависит от источника сточных вод, места сброса и уровня загрязнения воды. Степень очистки стоков регламентируется государственными нормативами «СНиП 2.04.03-85 Канализация. Наружные сети и сооружения».
Применение комплексных систем очистки стоков ЛОС
Комплексная система очистки ливневых стоков наиболее часто используется на промышленных объектах, на территории которых наблюдается значительное загрязнение стоков вредными для жизни и здоровья веществами. Отвод загрязненного стока такими веществами без предварительной очистки и обеззараживания категорически запрещается.
- складские помещения;
- гаражи;
- автостоянки;
- автомойки;
- автосервисы;
- АЗС (автозаправочные станции);
- стоки воды с территории предприятий;
- стоки городских улиц;
- отвод дренажных вод.
Принцип работы комплексных систем очистки стоков
Комплексная система очистки поверхностных стоков “КПН” (комбинированный песко-нефтеуловитель с дополнительным сорбционным блоком) выполняется в едином корпусе, внутри разделенном на несколько секций, через которые поэтапно проходит очищаемая вода, проходя несколько стадий очистки.
На первом этапе, (отстойник, пескоулавливатель) осаждаются твердые частицы, песок, мелки камни и другой мусор. Через переливное отверстие вода попадает на губчатый фильтр (коалесцентный модуль, сепаратор нефтепродуктов) с помощью которого отделяются частицы масел и других нефтепродуктов.
На заключительном этапе используется сорбционный фильтр (доочистка), который позволяет избавиться от растворенных в воде органических соединений.
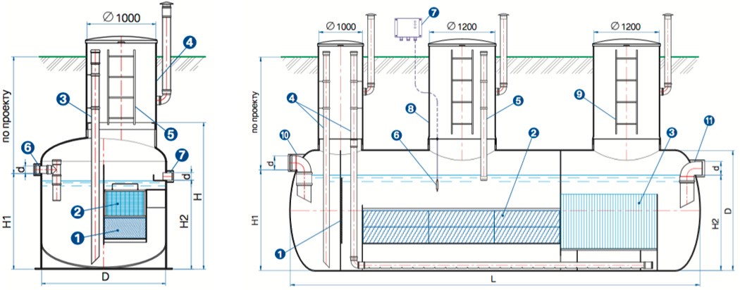
Устройство системы очистки воды ЛОС
1 – корпус; 2 – входной патрубок; 3 – пескоотделитель; 4 – коалесцентный модуль; 5 –распределительное устройство сорбционного фильтра; 6 – сорбционный фильтр; 7 – водосборное устройство; 8– выходной патрубок; 9 – колодец обслуживания; 10 – лестница.
Монтаж систем очистки стоков
ТОО «VIAMM» осуществляет поставку, монтаж, пуско-наладочные работы и запуск в эксплуатацию комплексных систем очистки стоков.
Мы осуществляем сервисное, гарантийное и послегарантийное обслуживание нашего оборудования.
Предоставим всю необходимую документацией и сертификаты, согласуем проект в контролирующих инстанциях, получим все необходимые разрешения на установку и монтаж оборудования.
Преимущества комплексных систем очистки сточных вод
Применение комплексной технологии очистки сточной воды “ЛОС в едином корпусе” имеет ряд неоспоримых преимуществ:
- минимальная площадь очистных сооружений;
- высокое качество очистки сточных вод;
- отсутствие неприятного запаха;
- низкие затраты на эксплуатацию, обслуживание;
- удобство и простота эксплуатации;
- невысокая стоимость комплекта
Нефтеуловитель «НУ»
Нефтеуловитель служит для выделения взвешенных веществ и нефтепродуктов из состава сточных вод.
В нефтеуловителе сточная вода проходит три стадии очистки. Движение воды – самотечное, происходит за счет разности уровней воды на входе и выходе.
Принцип очистки
Нефтеуловитель выполняет функции очистки поверхностных сточных вод механическим путем, с целью удаления содержащихся в них всплывающих примесей, в составе которых продукты отходов нефти и масел, а также продукты сгорания топлива. Сточные воды самотеком поступают в устройство, где проходит несколько этапов очистки.
Работа устройства осуществляется с применением технологии коалесценции. Последняя обеспечивает слияние в жидких стоках при соприкосновении разрозненных капель нефтепродуктов. Активизация данного процесса происходит благодаря использованию специально разработанных коалесцентных фильтров. Проходя именно через них, маленькие частицы задерживаются и сталкиваются друг с другом, сливаясь в единое целое. При этом частицы нефтепродуктов становятся значительно крупнее и поднимаются на поверхность.
Таким образом, основной состав нефтепродуктов располагается наверху, откуда периодически откачивается через технический колодец
Нефтеуловитель «НУ» (1-9 л/с) | Нефтеуловитель «НУ» (10-100 л/с) |
Эффективность очистки нефтеуловителей «НУ»
Вид загрязнений | характеристики исходной воды, мг/л | характеристики очищенной воды, мг/л |
Взвешенные вещества | До 600 | 10-20 |
Нефтепродукты | До 120 | 0,3-0,5 |
Технические характеристики нефтеуловителей вертикальных «НУ» (1-10 л/с)
Марка | Q, л/с | Вес, кг | Основные размеры (мм) | Технические колодцы, шт. | |||||
D, мм | H, мм | d, мм | H1, мм | H2, мм | ТК-1000 | ТК-1200 | |||
НУ-2 | 1-2 | 315 | 1600 | 2140 | 110 | 1400 | 1300 | 1 | - |
НУ-4 | 3-4 | 385 | 1800 | 2140 | 110 | 1400 | 1300 | 1 | - |
НУ-6 | 5-6 | 445 | 2000 | 2290 | 160 | 1400 | 1300 | - | 1 |
НУ-10 | 7-9 | 505 | 2200 | 2300 | 160 | 1400 | 1300 | - | 1 |
Технические характеристики нефтеуловителей горизонтальных «НУ» (10-100 л/с)
Марка | Q, л/с | Вес, кг | Основные размеры (мм) | Технические колодцы, шт. | |||||
D, мм | L, мм | d, мм | H1, мм | H2, мм | ТК-1200 | ТК-800 | |||
НУ-10 | 10 | 1113 | 2200 | 5900 | 160 | 1850 | 1750 | 2 | 1 |
НУ-11 | 11 | 1131 | 2200 | 6000 | 160 | 1850 | 1750 | 2 | 1 |
НУ-12 | 12 | 1165 | 2200 | 6200 | 160 | 1850 | 1750 | 2 | 1 |
НУ-13 | 13 | 1201 | 2200 | 6400 | 160 | 1850 | 1750 | 2 | 1 |
НУ-14 | 14 | 1234 | 2200 | 6600 | 160 | 1850 | 1750 | 2 | 1 |
НУ-15 | 15 | 1364 | 2200 | 6800 | 160 | 1850 | 1750 | 2 | 1 |
НУ-16 | 16 | 1398 | 2200 | 7000 | 200 | 1850 | 1750 | 2 | 1 |
НУ-17 | 17 | 1416 | 2200 | 7100 | 200 | 1850 | 1750 | 2 | 1 |
НУ-18 | 18 | 1433 | 2200 | 7200 | 200 | 1850 | 1750 | 2 | 1 |
НУ-19 | 19 | 1450 | 2200 | 7300 | 200 | 1850 | 1750 | 2 | 1 |
НУ-20 | 20 | 1485 | 2200 | 7500 | 200 | 1850 | 1750 | 2 | 1 |
НУ-25 | 21-25 | 2022 | 2200 | 10000 | 200 | 1850 | 1750 | 3 | 1 |
НУ-30 | 26-30 | 2109 | 2200 | 10500 | 200 | 1850 | 1750 | 3 | 1 |
НУ-35 | 31-35 | 2195 | 2200 | 11000 | 250 | 1850 | 1750 | 3 | 1 |
НУ-40 | 36-40 | 2281 | 2200 | 11500 | 250 | 1850 | 1750 | 3 | 1 |
НУ-45 | 41-45 | 2368 | 2200 | 12000 | 250 | 1850 | 1750 | 3 | 1 |
НУ-50 | 46-50 | 2454 | 2200 | 12500 | 250 | 1850 | 1750 | 3 | 1 |
НУ-55 | 51-55 | 2540 | 2200 | 13000 | 315 | 1850 | 1750 | 3 | 1 |
НУ-60 | 56-60 | 2261 | 3000 | 8000 | 315 | 2600 | 2500 | 3 | 1 |
НУ-65 | 61-65 | 2379 | 3000 | 8500 | 315 | 2600 | 2500 | 3 | 1 |
НУ-70 | 66-70 | 2496 | 3000 | 9000 | 400 | 2600 | 2500 | 3 | 1 |
НУ-75 | 71-75 | 2614 | 3000 | 9500 | 400 | 2600 | 2500 | 3 | 1 |
НУ-80 | 76-80 | 2732 | 3000 | 10000 | 400 | 2600 | 2500 | 3 | 1 |
НУ-85 | 81-85 | 2850 | 3000 | 10500 | 400 | 2600 | 2500 | 3 | 1 |
НУ-90 | 86-90 | 2967 | 3000 | 11000 | 400 | 2600 | 2500 | 3 | 1 |
НУ-95 | 91-95 | 3085 | 3000 | 11500 | 400 | 2600 | 2500 | 3 | 1 |
НУ-100 | 96-100 | 3203 | 3000 | 12000 | 400 | 2600 | 2500 | 3 | 1 |
Пескоуловитель «ПУ»
Пескоуловитель предназначен для улавливания взвешенных частиц, а также неэмульгированных нефтепродуктов. Принцип действия пескоуловителя основан на гравитации при отстаивании в тонком слое.
В пескоуловителе сточная вода проходит две стадии очистки. Движение воды – самотечное, происходит за счет разности уровней воды на входе и выходе.
Степень очистки воды от взвешенных веществ, при прохождении через пескоуловитель не менее 80%.
Принцип очистки
Пескоуловитель представляет собой емкость, в которой происходит осаждение нерастворимых частиц, содержащихся в воде, плотность которых не превышает 1500 кг/м3. Устанавливается при высоком содержании взвешенных веществ в сточных водах.
Назначение установки – предотвратить попадание взвешенных веществ в нефтеуловитетель и безнапорный сорбционный фильтр, тем самым увеличить срок их эксплуатации без регенерации сорбента.
Принцип действия пескоуловителя основан на методе гравитации, с помощью которой частицы, являющиеся более тяжелыми, чем сточная вода оседают на дно пескоуловителя. Собравшись на дне пескоуловителя различные частицы и примеси требуют удаления с помощью специальной ассенизаторской машины. Откачка производится периодически через технический колодец для обслуживания.
Может быть укомплектован датчиком осадка, вывод сигнала на расстоянии до 50 м. При большой нагрузке на пескоотделитель, рекомендуется дополнительно комплектовать тонкослойными блокам.
Пескоуловитель «ПУ» (1-9 л/с) | Пескоуловитель «ПУ» (10-100 л/с) |
Преимущества использования тонкослойных модулей:
- Площадь проекции осаждающей поверхности в 5 раз больше площади основания.
- Применимы для резервуаров любых размеров и форм.
- Устойчивы к химическим, биологическим и температурным изменениям. Низкая тенденция к охрупчиванию, устойчивость к эрозии. Долговечность (срок эксплуатации более 25 лет).
Технические характеристики пескоуловителей «ПУ» (1-9 л/с)
Марка | Q, л/с | Основные размеры (мм) | Технические колодцы, шт. | ||||||
Вес, кг | D | L | d | H1 | H2 | ТК-1000 | ТК-1200 | ||
ПУ-2 | 1-2 | 305 | 1500 | 2140 | 110 | 1400 | 1300 | 1 | - |
ПУ-4 | 3-4 | 384 | 1800 | 2140 | 110 | 1400 | 1300 | 1 | - |
ПУ-6 | 5-6 | 432 | 2000 | 2290 | 160 | 1400 | 1300 | - | 1 |
ПУ-9 | 7-9 | 485 | 2200 | 2290 | 160 | 1400 | 1300 | - | 1 |
Технические характеристики пескоуловителей «ПУ» (10-100 л/с)
Марка | Q, л/с | Основные размеры (мм) | Технические колодцы, шт. | ||||||
Вес, кг | D | L | d | H1 | H2 | ТК-1200 | ТК-800 | ||
ПУ-10 | 10 | 678 | 1500 | 4200 | 110 | 1300 | 1200 | 2 | - |
ПУ-15 | 10-15 | 1113 | 2200 | 4750 | 160 | 1800 | 1700 | 2 | - |
ПУ-20 | 16-20 | 1368 | 2200 | 5800 | 200 | 1800 | 1700 | 2 | - |
ПУ-25 | 21-25 | 1418 | 2200 | 6500 | 200 | 1800 | 1700 | 2 | - |
ПУ-30 | 26-30 | 1591 | 2200 | 7500 | 200 | 1800 | 1700 | 2 | - |
ПУ-35 | 31-35 | 1763 | 2200 | 8500 | 250 | 1800 | 1700 | 3 | - |
ПУ-40 | 36-40 | 1936 | 2200 | 9500 | 250 | 1800 | 1700 | 3 | - |
ПУ-45 | 41-45 | 2109 | 2200 | 10500 | 250 | 1800 | 1700 | 3 | - |
ПУ-50 | 46-50 | 2281 | 2200 | 11500 | 250 | 1800 | 1700 | 3 | - |
ПУ-55 | 51-55 | 2540 | 2200 | 13000 | 315 | 1800 | 1700 | 3 | - |
ПУ-60 | 56-60 | 2261 | 3000 | 8000 | 315 | 2600 | 2500 | 3 | - |
ПУ-65 | 61-65 | 2379 | 3000 | 8500 | 315 | 2600 | 2500 | 3 | - |
ПУ-70 | 66-70 | 2496 | 3000 | 9000 | 400 | 2600 | 2500 | 3 | - |
ПУ-75 | 71-75 | 2614 | 3000 | 9500 | 400 | 2600 | 2500 | 3 | - |
ПУ-80 | 76-80 | 2732 | 3000 | 10000 | 400 | 2600 | 2500 | 3 | - |
ПУ-85 | 81-85 | 2967 | 3000 | 11000 | 400 | 2600 | 2500 | 3 | - |
ПУ-90 | 86-90 | 3203 | 3000 | 12000 | 400 | 2600 | 2500 | 3 | - |
ПУ-95 | 91-95 | 3321 | 3000 | 12500 | 400 | 2600 | 2500 | 3 | - |
ПУ-100 | 96-100 | 3438 | 3000 | 13000 | 400 | 2600 | 2500 | 3 | - |